SOLICITA YA TU ASESORÍA CON NOSOTROS
LUNES A VIERNES DE 09:30 A 18:00 HORAS
|

SERRANO 627, 2D Y 2B, SANTIAGO

Descripción

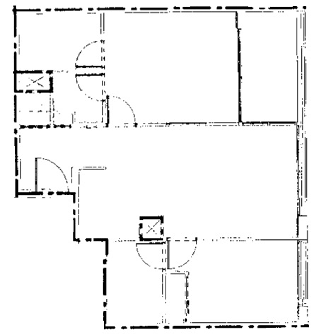
En venta cómodo departamento, estilo mariposa cuenta con 2 dormitorios, cocina americana amoblada, 2 baños, living-comedor, se incluye una bodega. Edificio moderno y seguro, posee dependencias de primer nivel como piscina, quincho, sala multiuso, lavandería, patio central, Cercano a estación de metro Parque Almagro, universidades, supermercados, parques, excelente ubicación y conectividad en la comuna de Santiago.

Envíanos un mensaje de WhatsApp